托盤
0842090043 博世工件托盤WT2
名稱:完整安裝好托盤
部件號:0842090043
規格:400*240
產品系列:輸送系統TS2
021-57893800工作時間:周一至周五 9:00-18:00
- 產品介紹
- 技術參數
- 產品圖片
0842090043 博世工件托盤WT2是完全裝配好的形式,這種工件托盤牢固,是高剛性塑鋼組合結構,用于在輸送系統 TS 2plus中承載、輸送工件。
用途:
這種工件托盤牢固,是高剛性塑鋼組合結構,用于在輸送系統 TS 2plus中承載、輸送工件。不能用于堆積滾子鏈!
設計:
– 塑料框架模塊,帶通用鋼制承載板
– 15 種 標準規格
– 集成式定位銷套
– 工件托盤規格 長lWT x 寬bWT,從 160 x 160 mm 到640 x 640 mm
– 所有長 lWT x 寬bWT 在 400 x 400 mm以上的 WT 型承載板均標配 4 個附加螺紋孔用于加固螺栓。
– 可選配安裝識別系統 ID 10、ID 40和 ID 200 的活動數據標簽

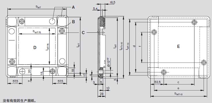
A:開關感應片
B:導向槽
C:擋停器凹槽
D:底部空間
E:頂部空間
| 單位:mm | |
| 編號 | 0842090043 |
| lWT | 400 |
| bWT | 240 |
| c | 125 |
| d | 364 |
| e | 204 |
| f | 285 |
| mwt 1) | 4.7 |
1) 空負載重量/工件托盤自重








