皮帶
3842999723 力士樂皮帶輸送段
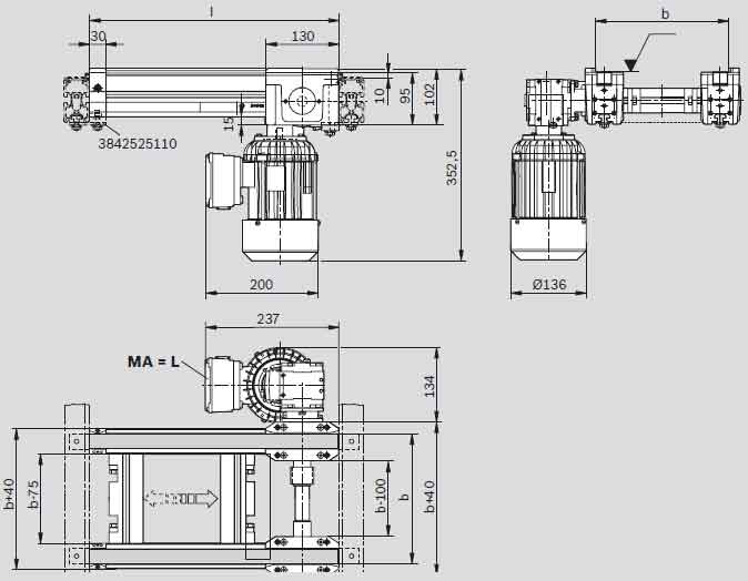
品牌:博世力士樂
名稱:皮帶輸送段BS 2/TE
部件號:3842999723
產品系列:輸送系統TS2
021-57893800工作時間:周一至周五 9:00-18:00
- 產品介紹
- 技術參數
- 產品圖片
用途:
– 橫向輸送位于盡頭的輸送段的工件托盤,且可驅動 HQ 2/O 橫向輸送提升單元。
設計:
– 作為輸送段使用
– 堆積操作時,*大允許負載達60 kg。
– 輸送介質:帶表面編織層的齒形皮帶,也有抗靜電的齒形皮帶 (ZA = A)提供。
– 適合反向操作
– 額外有齒輪驅動 HQ 2/O 橫向輸送提升單元。齒輪位置視 HQ 2/O 的尺寸而定(定購參數 UB)。
– 電機安裝位置可在右側 (MA = R)、左側 (MA = L) 或中間 (MA = M)。
– 可選擇使用電纜/插頭 (AT = S) 或端子盒 (AT = K) 連接電機。
供貨形式:
已裝配
可選配件:
– 1x 連接套件 3842525110,用于在輸送段 ST 2/…上安裝 BS 2/TE 皮帶輸送段
– SZ 2/… 腿架









